Venta de casa adosada en Calle Sant Isidre Número 26 , Rubí Barcelona

Ref: VC0070

Estado: A reformar

Superfície: 115 m2

Habitaciones: 3

Baños: 2

Características

Terraza Acceso minusválidos Aire acondicionado Amueblado Armarios Ascensor Balcón Calefacción Exterior Garaje Jardín Patio Piscina Trastero

240.000 €

(115 m2 - 2.086,96 €/m2)

Descripción

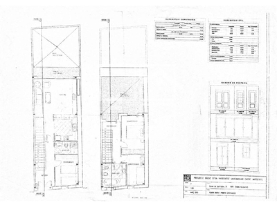
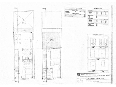
Si quieres disfrutar de la calidad de vida de vivir en una casa en el centro del pueblo rodead@ de todos los servicios y comercios y además quieres hacerla a tu medida, no dejes escapar esta oportunidad. No se encuentran muchas viviendas tan bien ubicadas y con estas características. Se trata de una casa adosada con patio de 17m2 y gran terraza de 22m2 con mucha intimidad. La vivienda de dos plantas está construida en un solar de 88m2 y dispone de 115m2 construidos y 88,7m2 útiles. Existe un proyecto de construcción con las siguientes características: salón comedor de 33m2 con cocina americana, 2 habitaciones dobles de 11,5m2 y 9.5m2, 1 habitación individual y dos baños. Con orientación este oeste disfruta de sol todo el día, por lo que es una casa muy alegre y luminosa. Las fotografías que mostramos son fieles al estado actual de construcción de la vivienda. En el apartado de planos podrás ver las características del proyecto. Llámanos y te informaremos en detalle. Si quieres disfrutar de la calidad de vida de vivir en una casa en el centro del pueblo rodead@ de todos los servicios y comercios y además quieres hacerla a tu medida, no dejes escapar esta oportunidad. No se encuentran muchas viviendas tan bien ubicadas y con estas características. Se trata de una casa adosada con patio de 17m2 y gran terraza de 22m2 con mucha intimidad. La vivienda de dos plantas está construida en un solar de 88m2 y dispone de 115m2 construidos y 88,7m2 útiles. Existe un proyecto de construcción con las siguientes características: salón comedor de 33m2 con cocina americana, 2 habitaciones dobles de 11,5m2 y 9.5m2, 1 habitación individual y dos baños. Con orientación este oeste disfruta de sol todo el día, por lo que es una casa muy alegre y luminosa. Las fotografías que mostramos son fieles al estado actual de construcción de la vivienda. En el apartado de planos podrás ver las características del proyecto. Llámanos y te informaremos en detalle.

Certificado energético

Consumo:
En proceso
Emisiones:
En proceso
Inmueble gestionado por:
ICASA GRUP