Venta de casa adosada en Barcelona

Ref: 174209504709

Estado: Buen estado

Superfície: 1 m2

Baños: 1

Características

Aire acondicionado Calefacción Garaje Jardín Terraza Acceso minusválidos Amueblado Armarios Ascensor Balcón Exterior Patio Piscina Trastero

385.000 €

(1 m2 - 385.000,00 €/m2)

Descripción

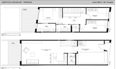
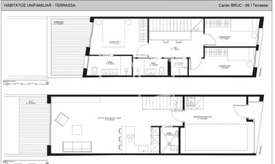
CA N'AURELL: NUEVA PROMOCIÓN. PROYECTO CONSTRUCCIÓN DE CASA DE 125m² (BAJOS 1 PLANTA) DISTRIBUIDA DE LA SIGUIENTE MANERA: PLANTA BAJA: NOES ENCONTRAMOS CONO UN GARAJE PARA 1 COCHE DE 20m², CON ACCESO A LA CASA DONDE TENEMOS UN SALÓN COMEDOR DE 34m² CONO SALIDA AL PATIO DE 30m² CON SOL TODO EL DÍA (ORIENTACIÓN SUR), CONO COCINA ABIERTA TIPO PENINSULAR O TIPO ISLA (A GUSTO DEL CLIENTE) CONO UN ASEO DE CORTESÍA. EN LA PRIMERA PLANTA: ACCEDEMOS A LA PLANTA Y NOS ENCONTRAMOS CON 1 HABITACIÓN DE MATRIMONIO SUITTE CON PLATO DUCHA CON ACCESO A UNA TERRAZA DE 10m², (VISTAS AL PATIO) MAS OTRO CUARTO DE BAÑO FAMILIAR CON PLATO DUCHA, UNA SALA DE AGUAS (LAVADORA, SECADORA) Y 2 HABITACIONES EXTERIORES INDIVIDUALES ORIENTADAS A LA FACHADA, BUSCA DE RAMBLA, FANTÁSTICA UBICACIÓN . . GRANDE OPORTUNIDAD.( CONO POSIBILIDAD DE HACER UN ESTUDIO OPCIONALL) LLÁMENOS LE INFORMAREMOS CONO CITA PREVIA (PLAZO ENTREGA DE 10 MESAS A 12MESES)

Certificado energético

Consumo:
En proceso
Emisiones:
En proceso
Inmueble gestionado por:
1041 - PSO. 22 DE JULIOL Nº 612 - PEREZ AGUILAR, JOSEP